QCAD中文版作为专业的二维计算机辅助设计软件,凭借清晰的界面布局和流畅的操作逻辑,已成为工程制图领域的实用工具。该软件支持建筑平面图、机械零件图、室内布局图等多种技术图纸的精准绘制,其兼容DXF标准格式的特性更能满足跨平台协作需求。

核心功能解析
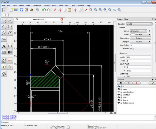
这款CAD解决方案内置超过60种专业工具组,涵盖从基础绘图到复杂修改的全流程需求。特有的图层面板管理系统可对设计元素进行精细化分层控制,配合多维度测量标尺和35种标准CAD字体库,确保图纸输出符合工业制图规范。针对中文用户特别优化的微软雅黑字体支持,显著提升设计文本的可读性与专业性。

技术优势解读
软件采用轻量化架构设计,在保证功能完整性的同时降低系统资源占用。智能捕捉系统可精准定位几何特征点,配合动态输入框实现毫米级精度控制。创新性的单位换算系统支持公制/英制实时切换,满足全球化设计标准要求。特有的版本兼容模式可准确解析不同时期CAD文件格式,确保设计数据传承完整性。
真实用户反馈:
「@制图达人陈工:相比同类软件,QCAD中文版的学习曲线平缓得多,三天就能掌握基础操作」
「@建筑系张同学:课程设计全靠它完成,导出图纸完全符合导师要求」
「@机械设计师老周:用了五年稳定性很好,特别推荐给中小型制造企业」
该软件经过多年版本迭代,现已形成覆盖Windows、macOS、Linux三大系统的完整生态。通过持续优化本地化服务,中文帮助文档和视频教程的完善程度已达到行业领先水平,为不同阶段使用者提供全方位技术支撑。
